优质合金钢高度圆环链单/双通道输送量比普通机型提高30%以上
售价:18000元-50000元元价格依据型号规格、链条选择情况有所差
粉状、粒状及小块状物料输送量:5.4-365立方/时提升高度:40米
用户保障:30天价保,30天质量问题包退,365天免费维护
带料试机:携带物料免费试机,专人接待
极速发货:常规型号当天发货,定制型号7天内发货
无忧售后:定期回访,售后跟踪,7*24h客服在线
选择类型碳钢不锈钢
立即订购全国统一热线:0373—268 2333
HL型环链斗式提升机适用于垂直输送磨琢性较大的粉状、粒状及小块状物料,物料温度不超过250℃,输送高达40米?;妨炊肥教嵘捎锰腿∈阶傲?、混合式或重力卸料,轮缘采用组合链轮,更换方便,链轮轮缘经特殊处理寿命长,下部采用重力自动张建装置,避免打滑和脱链。
1、材质分类
碳钢:采用Q235碳钢材质,适合对耐腐蚀要求和卫生要求不高的物料使用,成本较低。
不锈钢:采用SUS304/316不锈钢材质,具有耐酸、碱、盐等腐蚀,高温下抗氧化、硫化、氯化、氟化、干净卫生等特点。
2、外形分类
单通道:中间一个箱体,单通道环链斗式提升机是料斗的上行和下行都是在一个机壳通道内。
双通道:中间两个箱体,上升通道和下降通道分别独立,不宜荡料,提升效率高,提升量要比单通道垂直提升机提升量高30%左右。
HL环链型斗式提升机是生产线中常用的斗式提升机设备,适用于输送堆密度不大于1.5t/m3的物料的粉状、粒状、小块状的磨琢性较大的物料,如粮食、煤、水泥、碎矿石、化肥等,提升高度高达40米,物料的温度不得超过250℃。
环链斗式提升机适用于各种散状物料垂直提升,物料温度≤250℃
1、运行平稳、输送效率高。
2、料斗形式多,可根据物料性质选用。
3、适应性强、安装维修方便、使用寿命长。
4、整机体积小、转速高、可确保快速均匀输送。
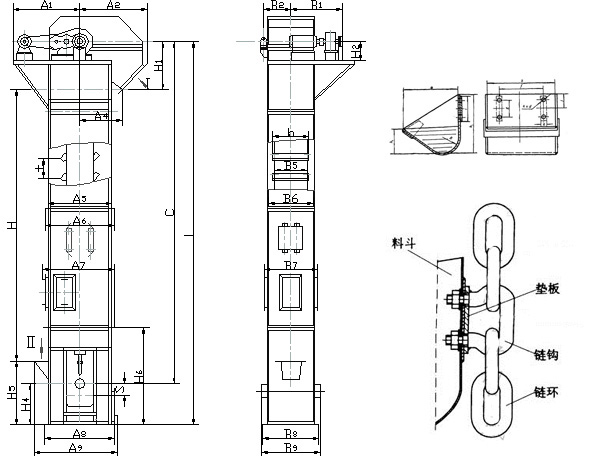
HL型环链斗式提升机由运行部件、驱动装置、上部装置、中部机壳、下部装置组成。
运行部件---由料斗和专用圆环链条组成,链条抗拉强度高、耐磨性好。
驱动装置---采用多种驱动组合驱动,(依用户实际需要而定).驱动平台上装有检修架和栏杆。驱动制装置分左和右装两种。
上部装置---安装有轨道(双排链)、逆止器、卸料口装有防回料橡胶板。
中间节---部分中间节装有轨道(双链),以防止链条工作中摆动。
下部装置---安装有自动张紧装置。
TH型斗式提升机 ——ZH型(中深斗)一般使用于输送湿的、结块、较难抛出的物料,如湿砂、型砂、化肥、碱粉等。
TH型斗式提升机 ——SH型(深斗)一般使用于输送干燥的、松散易于抛出的物料,如水泥、碎石、煤块等。
我公司生产的HL型环链离心斗式提升机,由运动部分(料斗与牵引链条)、带有传动链轮的上部区段、带有拉紧轮的下部区段、中间机壳、驱动装置、逆止制动装置等组成(见下图)。本提升机的料斗为间断式布置,利用"掏取法"进行装载,"离心投料法"卸料。本提升机的牵引机构是两根环形链条.我公司生产的HL型环链离心斗式提升机,由运动部分(料斗与牵引链条)、带有传动链轮的上部区段、带有拉紧轮的下部区段、中间机壳、驱动装置、逆止制动装置等组成(见下图)。本提升机的料斗为间断式布置,利用"掏取法"进行装载,"离心投料法"卸料。HL型斗式提升机的牵引机构是两根环形链条。
说明:
1.订货时除注明型号外,必须提供提升高度数据。
2.深斗式料斗适用于干燥松散物料,浅斗式料斗适用于潮湿粘性物料。
您在采购环链斗式提升机时,请将您需要的规格、型号告知生产厂家销售人员,他们会问提供详细报价作为参考依据,如果您对本设备不是很了解时,可将提升物料颗粒度大小,有无粘度,含水大小与提升量和提升高度,使用工况与安装环境告知我公司销售或技术人员,他们会帮您选型一款符合现场使用要求的环链斗式提升机。
Copyright ? 2008-2025 螺旋输送机厂家-新乡市大汉振动机械有限公司 All Rights Reserved 版权所有
网站备案号:豫ICP备09002479号-47
网址:http://www.marscamp.cn/新乡大汉机械厂家专业生产螺旋输送机、皮带输送机、提升机等机械