TD型按JB3926-85《垂直斗式提升机》标准设计制造,目前国内常用的斗式提升机均为垂直式,较新型。斗式提升机适用于垂直输送粉状、粒状及小块状且磨琢性较小的散状物料,如粮食、煤、水泥、碎矿石等,提升高度40m。TD斗式提升机备有四种料斗Q型(浅斗)、H型(弧底斗)、ZD型(中深斗)SD型(深斗)。


TD,D系列斗式提升机适用于输送粉状,粒状及小块状的无磨琢性及磨琢性小的物料,如:煤、水泥、石块、砂、粘土、矿石等,由于其牵引件为橡胶带,被输送物料温度不得超过60℃,如采用耐热橡胶带时,温度不超过120,可广泛应用于各种规模的饲料厂、面粉厂、米厂、油厂、淀粉厂以及粮库、港口码头等。

TD,D系列斗式提升机提升铜屑
TD,D系列斗式提升机配套料仓,料仓下端接料装置为LS螺旋输送机出料

1.驱动功率小,采用流入式喂料、诱导式卸料、大容量的料斗密集型布置.在物料提升时几乎无回料和挖料现象,因此无效功率少。
2.提升范围广,这类提升机对物料的种类、特性要求少,不但能提升一般粉状、小颗粒状物料,而且可提升磨琢性较大的物料.密封性好,环境污染少。
3.运行可靠性好,设计原理和加工方法,保证了整机运行的可靠性,无故障时间超过2万小时。提升高度高.提升机运行平稳,因此可达到较高的提升高度。
4.使用寿命长,提升机的喂料采取流入式,无需用斗挖料,材料之间很少发生挤压和碰撞现象。本机在设计时保证物料在喂料、卸料时少有撒落,减少了机械磨损。

TD型斗式提升机主要由驱动装置、上部区段、料斗与橡胶带、中壳体、带检修门的中壳体、下部区段等组成,其主要结构特点是:
1、采用橡胶带作为牵引构件,具有自重小、挠性好、运行平稳、磨损小的特点
2、壳体之间、检修门与壳体之间处均设置有密封装置,保证无粉尘外泄,清洁
3、机壳和头罩设有多个检修门,一旦出现故障或者需要更换料斗等易损件时,可以便捷的进行检修或更换
4、在传统装置内部设有高可靠性的逆止机构,在防止牵引件和载料料斗逆行的同时,使传动装置整体结构紧凑、占用空间小
5、中部壳体均为折弯构件焊接而成,在提高机壳整体刚度的同时,使机壳各段节具有良好的通用性和互换性,保证组装完毕后,机壳具有良好的垂直度
6、在底部设有张紧机构,保证工作时皮带有足够的预紧力;同时在底部滚筒装置中带有自动调心机构,以防止滚筒受到不均匀拉力后发生倾斜,进而造成设备故障.
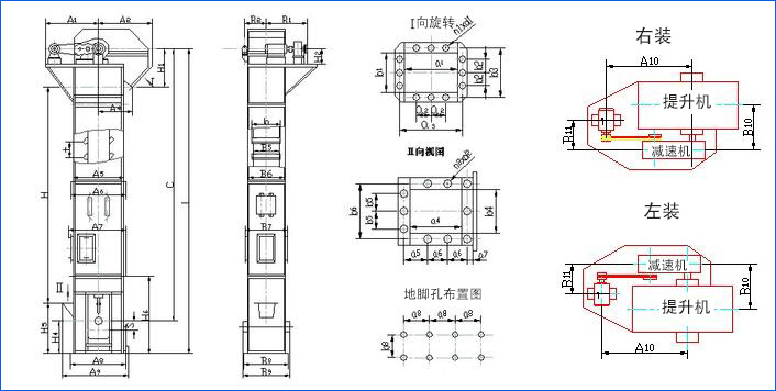
驱动装置分左装和右装两种,分别与提升机左、右装对应。
左装:为人面对进料口,驱动装置组合和传动链轮在左侧。
右装:为人面对进料口,驱动装置组合和传动链轮在右侧。

TD,D系列斗式提升机斗式提升机的传动装置有两种形式,分别配有YZ型减速型或ZQ(YY)型减速器。YZ型轴装减速器直接套装在主轴轴头上,省去了传动平台、联轴器等,使结构紧凑,重量轻,而且其内部带有异型辊逆止器,逆止可靠。该减速器噪声低,运转平稳,并随主轴浮动,可消除安装应力,ZQ(YY)型减速器齿轮传动圆周速度不大于10米/秒,高速轴的转速不大于1500转/分,用于正反两向运转,寿命长,而且能力大,强度高,齿面磨损小。
斗式提升机原理视频
TD,D系列斗式提升机料斗把物料从下面的储藏中舀起,随着输送带提升到顶部,绕过顶轮后向下翻转,然后将物料倾入接受槽内。
1、TD,D系列斗式提升机的牵引件是胶带,料斗间隔一定的距离并且通过螺钉与胶带固紧。一般用的胶带有:普通橡胶带,尼龙芯橡胶带,钢绳芯橡胶带。

普通橡胶带基本上是用棉织物为带芯,涂以胶层硫化成型的,通常在提升高度不大的场合中使用。
钢绳芯橡胶带是用钢绳为带芯,涂以胶层硫化成型的,适合提升量大、提升高度高的场合。
耐热型橡胶带可以用于输送高温物料,物料不超过150℃。
2、如果发生提升机底部堆料造成设备无法运行的,这有可能是由于提升机瞬间提升量不足造成的;因此,选型时应按较大瞬间提升量来计算。
3、如果固定料斗处的胶带经常被物料所伤,其原因可能是物料粒度过大(TD型提升机允许物料粒度不大于25mm,但小于5mm更佳),当料斗到达提升机的头部时,由于胶带出现张角而使物料夹在料斗与胶带之间,从而造成胶带损坏,此时建议选取环链提升机。
| 型号 | TD160 | TD250 | TD315 | TD400 | ||||||||||||
| 料斗形式 | Q | h | zD | Sd | Q | h | zD | Sd | Q | h | zD | Sd | Q | h | zD | Sd |
| 输送量(m3/h) | 5.4 | 9.6 | 9.6 | 16 | 12 | 22 | 23 | 35 | 17 | 30 | 25 | 40 | 24 | 46 | 41 | 66 |
| 斗宽(mm) | 160 | 250 | 315 | 400 | ||||||||||||
| 斗容(L) | 0.5 | 0.9 | 4.2 | 1.9 | 1.3 | 2.2 | 3.0 | 4.6 | 2 | 3.6 | 3.8 | 5.8 | 3.1 | 5.6 | 5.9 | 9.4 |
| 斗距(mm) | 280 | 350 | 360 | 450 | 400 | 500 | 480 | 560 | ||||||||
| 带宽(mm) | 200 | 300 | 400 | 500 | ||||||||||||
| 斗速(m/s) | 1.4 | 1.6 | 1.6 | 1.8 | ||||||||||||
| 物料量大块(mm) | 25 | 35 | 45 | 55 | ||||||||||||
| 型号 | TD500 | TD630 | TD160 | TD250 | TD350 | TD450 | ||||||||||
| 料斗形式 | Q | h | zD | Sd | h | zD | Sd | Q | S | Q | S | Q | S | Q | S | |
| 输送量(m3/h) | 38 | 70 | 58 | 92 | 85 | 89 | 142 | 4.7 | 8 | 18 | 22 | 25 | 42 | 50 | 72 | |
| 斗宽(mm) | 500 | 630 | 160 | 250 | 350 | 450 | ||||||||||
| 斗容(L) | 4.8 | 9 | 9.3 | 15 | 14 | 14.6 | 23.5 | 0.65 | 1.1 | 2.6 | 3.2 | 7 | 7.8 | 14.5 | 15 | |
| 斗距(mm) | 500 | 625 | 710 | 300 | 400 | 500 | 640 | |||||||||
| 带宽(mm) | 600 | 700 | 200 | 300 | 400 | 500 | ||||||||||
| 斗速(m/s) | 1.8 | 2 | 1 | 1.25 | 1.25 | 1.25 | ||||||||||
| 物料量大块(mm) | 60 | 70 | 25 | 35 | 45 | 55 | ||||||||||
说明:
1.表中斗容为计算斗容,输送量按填充系数0.6计算得出。
2.斗提机料斗用途为:
浅料斗:输送潮湿、易结块、难抛出的物料。如湿沙、湿煤等。
深料斗:输送干燥的、松散的、易抛出的物料。如水泥、煤块、碎石等。
TD-D型斗式提升机各部位润滑周期:
| 序号 | 润滑部位 | 润滑材料 | 润滑周期 | 润滑方法 |
| 1 | 传动及拉紧滚筒轴承 | 耐水润滑脂 | 200小时 | 利用注油器 |
| 2 | 逆止联轴器 | 耐水润滑脂 | 50小时 | 利用注油器 |
| 3 | 拉紧螺栓 | 耐水润滑脂 | 500小时 | 涂抹 |
| 4 | 电动机 | 耐水润滑脂 | 6个月 | 35 |


Copyright ? 2008-2019螺旋输送机厂家-新乡市大汉振动机械有限公司 All Rights Reserved 版权所有
网站备案号:豫ICP备09002479号-47
网址:http://www.marscamp.cn/新乡大汉机械厂家专业生产螺旋输送机、皮带输送机、提升机等机械







